The house will serve as accommodation for approximately 20 orphaned toddlers and their carers. We have 11 days in which to accomplish this mammoth task.
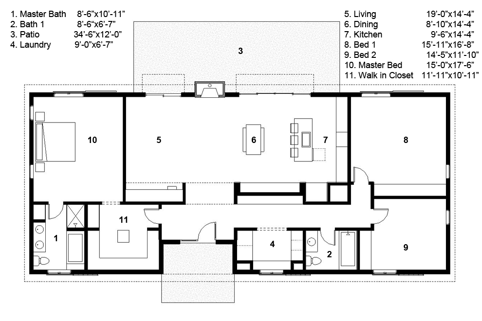
The floor plan of the house can be seen below.

When we get to site in Swaziland the foundations and floor will already be done. We arranged with local builders to pour the foundations and floor to give it time to cure, so that we could finish the project in the short time available.



